#2 4004 24 Avenue
Offered at: $329,900
MLS®: 10382374
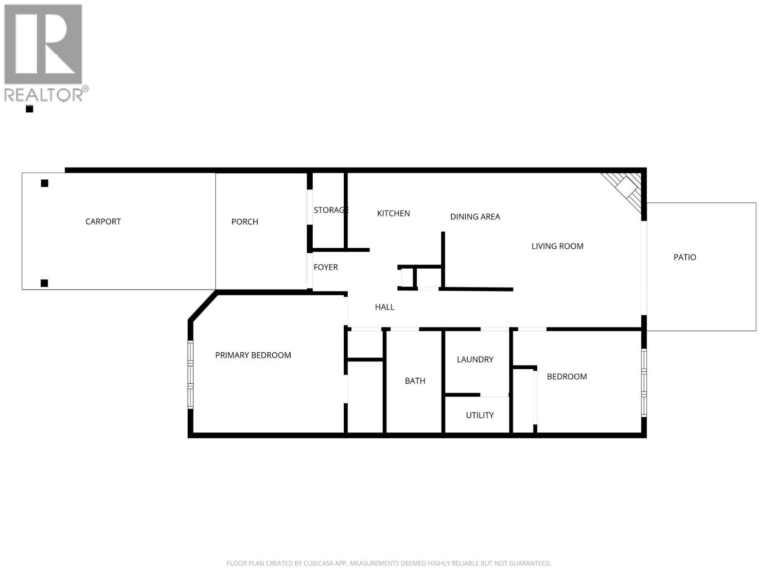
Nicely updated 2 bedroom 1 bathroom entry level townhouse with carport and rare backyard area. Unit is available for possession May 1 onwards and is in move in ready! Unit upgrades include windows, doors, flooring, countertops, and paint! Also the roof of the complex was recently replaced. Nice and open layout with plenty of natural light. Gas fireplace and baseboard heat handle the heating. Storage room off the carport as well. Location is close to town and all amenities! Pets are one cat or one dog (up to 18"" total). (id:6769)
Quick Stats
Key Home Data
1
BATH(S)
2
BED(S)
856
SQFT
YES
SHOWING AVAILABLE
Property Type:
Single Family Home Ownership:
Strata
Payment Calculator
Calculate your monthly mortgage payment.
Mortgage Amount
$
Amortization
years
Payment Freq.
Interest Rate
%
Calculating...
All About the Details
See specific details below.
Neighbourhood Statistics
Get to know your neighbourhood.


