#14 3416 Scott Road
Offered at: $715,000
MLS®: 10380305
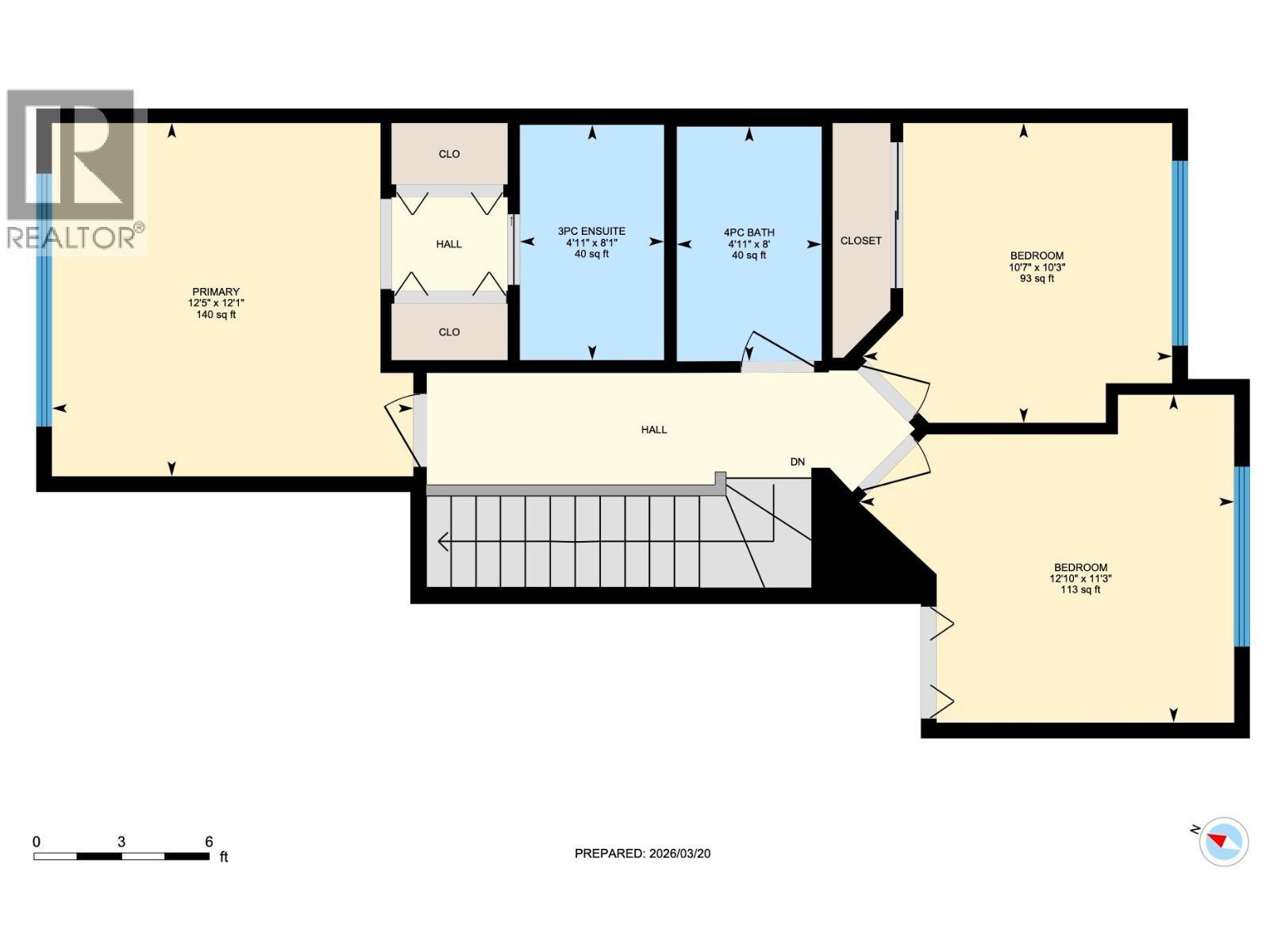
Welcome to Gyro Beach Townhomes- located steps to the beach, grocery stores, eateries, coffee shops, retail stores, liquor stores, medical clinics, banks, and so much more; this location is genuinely hard to beat for the price! Key features include 3 bedrooms plus an open air den, 2.5 baths, double car heated garage with additional space for storage, covered deck with gas bib, and a private fully fenced south west facing yard. Spacious, bright, great styling and quality finishes, including granite counter tops, tile, vinyl plank, 9ft ceilings, Viking gas stove, forced air heating and cooling, makes this a value priced package for owners and investors alike. Come experience what makes the Lower Mission so desirable to live in! (id:6769)
Quick Stats
Key Home Data
3
BATH(S)
3
BED(S)
1392
SQFT
YES
SHOWING AVAILABLE
Property Type:
Single Family Home Ownership:
Strata
Payment Calculator
Calculate your monthly mortgage payment.
Mortgage Amount
$
Amortization
years
Payment Freq.
Interest Rate
%
Calculating...
All About the Details
See specific details below.
Neighbourhood Statistics
Get to know your neighbourhood.


