2214 32 Street
Offered at: $420,000
MLS®: 10367616
DEVELOPERS ALERT! Are you looking to build a strata or Rental Housing near the heart of Downtown Vernon - Easily accessible from Highway 97. High visibility location. Half an hour from UBCO and the Kelowna Airport. Across the street from the Vernon Jubilee Hospital. Walking distance to Polson Park and downtown Vernon. Look no further! The house is a knock down and the area is prime for densification. The lot is flat and zoned MUM, Multi -Unit- Medium Scale. This is the perfect place to build a Triplex or Fourplex - MUM zoning is intended to allow for a range of small to medium scale housing development up to 4 Storeys in Height, in the form of low-rise Single Stair Egress Apartment Buildings, Apartment Housing, Stacked Townhouses, and Townhouses and multi-unit housing in developing and redeveloping areas. Public Bus Transit is across the street, lot is within walking distance to downtown Vernon. It is a great building lot because it is on a corner with laneway access, there is 100 ft of frontage on 23 Ave. south side of the road, 50 ft of frontage on Highway 97 ( 32 street) West side of 32 street, and 50 ft of frontage on the back alley way. Located only 30 minutes from the Kelowna International Airport . Don't miss out on this great development opportunity. This area is a prime re-development area of Mission Hill in desirable Vernon BC , with many new homes and infills being built right now, with the encouragement and cooperation of the City of Vernon . (id:6769)
Quick Stats
Key Home Data
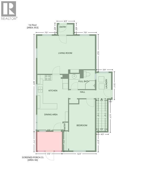
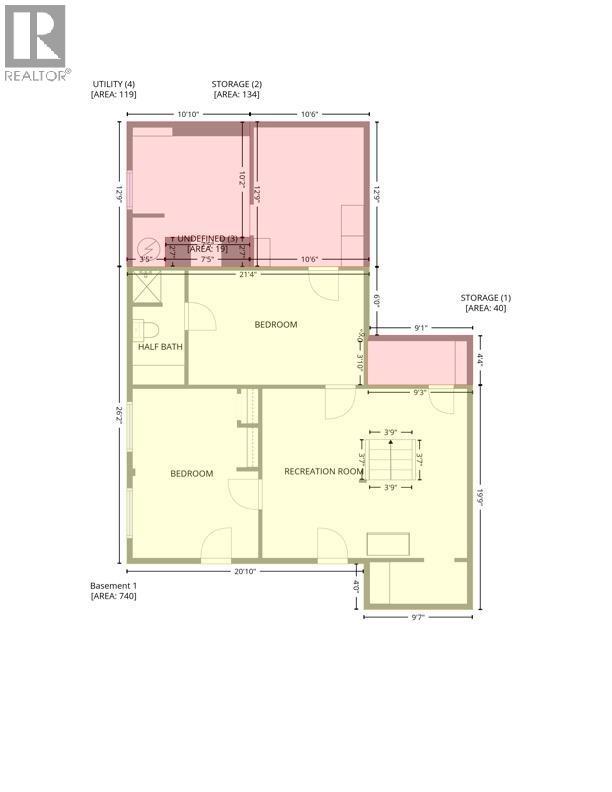
1
BATH(S)
3
BED(S)
1693
SQFT
YES
SHOWING AVAILABLE
Property Type:
Single Family Home Ownership:
Freehold
Payment Calculator
Calculate your monthly mortgage payment.
Mortgage Amount
$
Amortization
years
Payment Freq.
Interest Rate
%
Calculating...
All About the Details
See specific details below.
Neighbourhood Statistics
Get to know your neighbourhood.


