#6 2210 Louie Drive
Offered at: $500,000
MLS®: 10352763
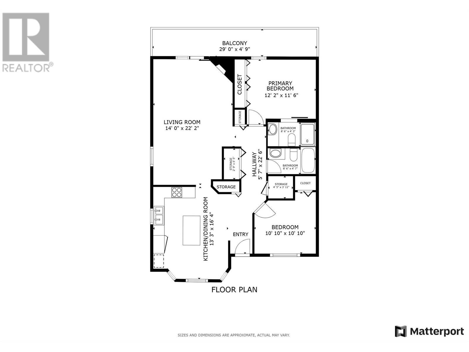
Welcome to one of the best values in Westbank! This renovated 2-bedroom, 2-bath rancher is a smart pick for first-time buyers or those looking to downsize without compromise. Step into thoughtfully updated living, featuring a stylish and spacious kitchen with quartz countertops, sleek new cabinetry, and a generous island that invites both morning coffee and evening catch-ups. The cozy gas fireplace adds warmth and charm, while brand-new flooring throughout gives a fresh, modern feel. The home has an abundance of storage with not only a separate storage shed plus a crawlspace that runs the full length of the house. With a carport plus an extra parking spot, you’ll have space for guests or a second vehicle. A small, low-maintenance backyard is ideal for pets—or just a quiet morning with your coffee. Tucked in a central Westbank location just 10 minutes from the beach and minutes to shopping, this home delivers both convenience and comfort. Blink and it’ll be gone—come see why this one’s a standout! (id:6769)
Quick Stats
Key Home Data
2
BATH(S)
2
BED(S)
1136
SQFT
YES
SHOWING AVAILABLE
Property Type:
Single Family Home Ownership:
Leasehold/Leased Land
Payment Calculator
Calculate your monthly mortgage payment.
Mortgage Amount
$
Amortization
years
Payment Freq.
Interest Rate
%
Calculating...
All About the Details
See specific details below.
Neighbourhood Statistics
Get to know your neighbourhood.


